為了確保混凝土布料機的作業安全,避免造成人身或設備事故,必須嚴格遵守下列規則,同時應嚴格遵守塔式起重機的有關安全規則。
1 當風速超過13.8m/s(6級風)時,嚴禁布料機工作。當風速超過7.9m/s(4級風)時,嚴禁布料機裝拆。
2 布料機應與高壓電線保持一定的距離。

3 端部澆注軟管必須系好安全繩。 端部軟管的最大長度為3 3米。

4 端部軟管必須處于自然懸垂狀態,不得折彎或將其插入混凝土中。

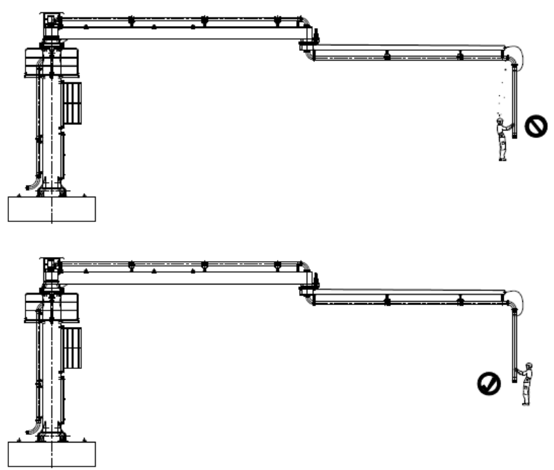
5 布料機工作時臂架下方不準站人。

6 操作人員應看得見整個工作范圍,如果視線有障礙,應由他人指導操作。
7 不準將臂架接長。
8 不允許在輸送管內有壓力時打開管接頭。
9 不得將端部軟管拆掉,讓臂架和另一個剛性輸送管路連接。
10 如果混凝土輸送管損壞時,必須選用相同類型的鋼管(外徑 ×厚度為Φ133 ×4.5 mm)。
11 臂架回轉未停穩時,不可改變回轉方向。
12 不允許兩節臂連續動作,應在塔身晃動停止后再操作另一節臂。
13 液壓系統壓力不得超過 16 MPa。
14 工作結束后,必須將小臂收攏,再切斷電源。
15 布料機不允許吊運物體。

標簽:   混凝土布料機 布料機的安全事項 布料機使用安全事項